€
EUR
£
GBP
kr
SEK
$
USD
Biens Immobiliers
Développements
À Vendre
Contact
Nouvelles
ImoEscala
Documents
Information
More
Biens Immobiliers
Développements
À Vendre
Contact
Nouvelles
ImoEscala
Documents
Information
0
0
€
EUR
£
GBP
kr
SEK
$
USD
Maison jumelée 3 Chambre(s)
Lisboa, Azambuja, Aveiras de Cima
Retour
\
Maison jumelée 3 Chambre(s) - Lisboa, Azambuja, Aveiras de Cima
Partager Immeuble
Facebook
X
Pinterest
WhatsApp
Copie du lien
Link copiado
Imprimer la fiche
Envoyer la propriété à un ami
Insérer un nom
Insérer un email
Entrez une adresse email valide
Insérer un nom
Insérer un email
Entrez une adresse email valide
J´ai lu et accepte les termes et conditions énoncés.
Savoir plus »
Pour terminer cette opération, vous devez lire et accepter nos conditions.
Champs obligatoires *
Envoyer
Photos
Vidéos
Plans
Tour virtuel
Seguir imóvel
Seguir imóvel
Receba um alerta quando existir uma Baixa de Preço
Nom
Insira o seu Nome
E-mail
Entrez votre email
Entrez une adresse email valide
Li e aceito a
Politique de confidentialité
Pour terminer cette opération, vous devez lire et accepter nos conditions.
Insérer le code de l'image
Code
Envoyer
Maison jumelée 3 Chambre(s), Lisboa, Azambuja, Aveiras de Cima
460 000 €
Ref:
IM221
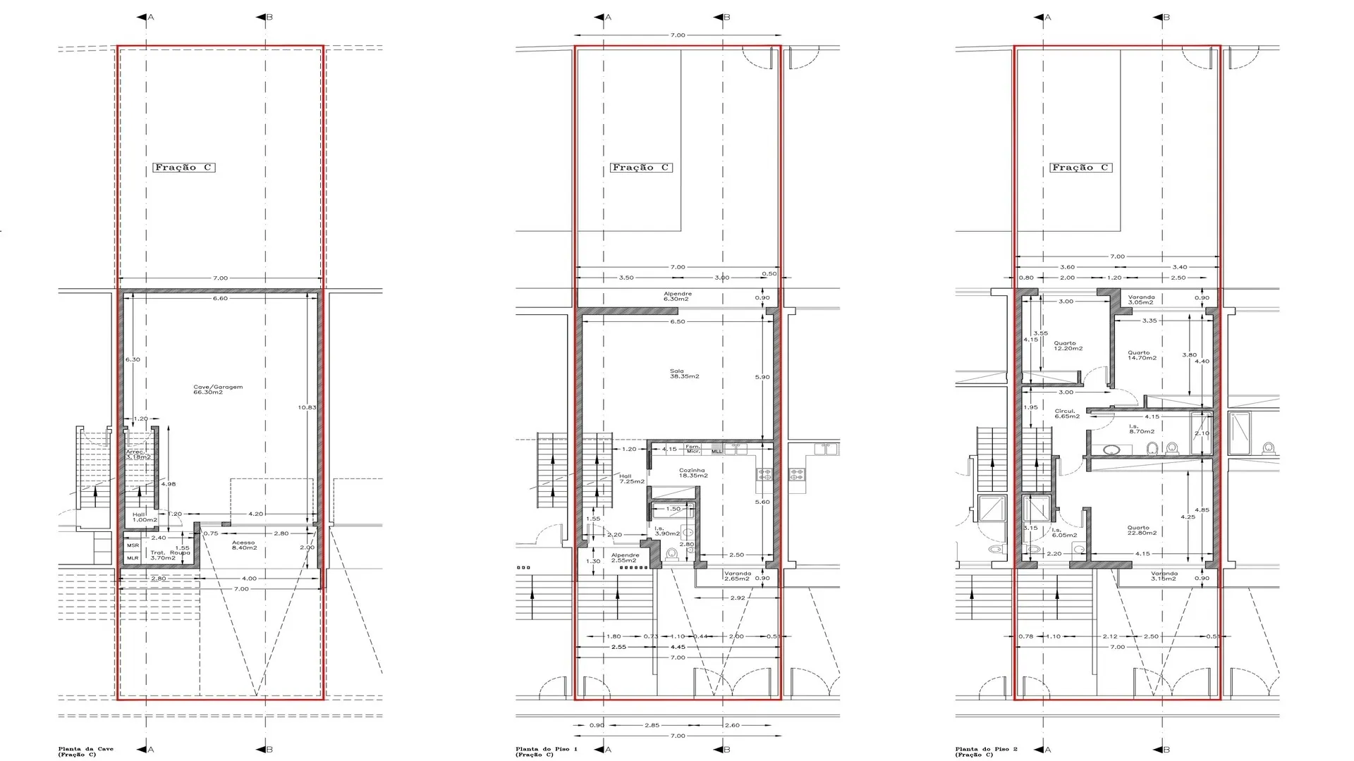
Maison jumelée de 3 chambres sur un terrain de 215,40 m², dans le condominium privé « Villas Mór Residences » situé à Aveiras de Cima, à quelques minutes de l’accès à l’A1, dans la municipalité d’Azambuja.
Cette villa luxueuse s’étend sur 3 étages, avec un jardin à l’avant et à l’arrière de la maison.
Sous-sol pour garage de 84 m², buanderie et débarras, avec accès par l’extérieur (portail électrique) ainsi que par l’intérieur de la maison.
Au rez-de-chaussée, ressentez le confort d’une pièce de 38 m² équipée d’un poêle à granulés ; Cuisine entièrement équipée de 18 m² ; Zone de circulation et toilettes.
Le 1er étage, en tant qu’espace le plus réservé, comprend : Suite (22 m²) avec WC (6 m²) ; 2 chambres avec armoires intégrées ; WC social (8,50 m²) et aire de circulation d’environ 7 m². Sur le toit, on trouve la zone technique, à savoir les climatiseurs, les panneaux solaires thermiques et les accumulateurs thermiques d’eau.
Vous pouvez également profiter d’un excellent espace extérieur avec la possibilité de construire une piscine avec des infrastructures déjà prêtes.
Construction avec une structure antisismique en acier A-400, béton hydrofuge ; Murs extérieurs en briques thermiques dûment certifiées ; Murs intérieurs en maçonnerie, enduits de mortier hydrofuge et de stuc projeté ; l’application de faux plafonds en plaques de plâtre et de plâtre résistantes à l’eau dans la cuisine et les toilettes ; Isolation acoustique fabriquée avec des panneaux d’agglomérat en liège expansé de 4 cm ; Aluminium de haute qualité (marque Strogal), avec une efficacité énergétique de classe A+ et équipé de verre Guardian Sun avec une efficacité énergétique de classe A+ ; Stores en aluminium laqué profilé d’une épaisseur de 50 mm de la marque « Aislalum » ; Toutes les dalles de toiture, en plus d’être bétonées en béton hydrofuge, ont été placées sur un toit « leca » d’environ 10 cm d’épaisseur et, avec une isolation spéciale en résine et, comme isolation finale, des dalles en céramique de 30x30 cm sur 30 mm d’épaisseur ont été placées sur l’ensemble du toit, permettant l’accès piétonnier aux infrastructures techniques de la maison.
Propriété avec des caractéristiques détaillées, incluant l’accessibilité pour les personnes en situation de handicap, intégrée dans un condominium avec une zone goudronnée pour la circulation piétonne et automobile, ainsi qu’un espace vert avec un parc avec gazon naturel et arbres.
Contactez-nous et venez découvrir ce magnifique condominium. Appelez maintenant !
*Les informations fournies sont à titre informatif uniquement et ne peuvent être considérées comme contraignantes, et ne dispensent pas de consultation ni de confirmation avec le médiateur.
3 Chambres
2 Salle de bain
1 Garage
173,6 m² Surface Habitable
257,8 m² Surface Totale
216,4 m² Surface de Terrain
Type de propriété
Maison jumelée
Typologie
3 Chambres
Objectif
Vente
Etat
N/D
Prix
460 000 €
Année de construction
2025
Pays
Portugal
Département
Lisboa
Ville
Azambuja
Lieu
Aveiras de Cima
Zone
Aveiras de Cima
Intéressé par cette propriété?
Date
Time
Nom
Insérer un nom
E-mail
Insérer un email
Entrez une adresse email valide
Contact
Entrez votre contact téléphonique
Message
Je demande plus d'informations, sans aucun engagement, à propos de la propriété IM221
J´ai lu et accepte les termes et conditions énoncés.
Politique de confidentialité
Pour terminer cette opération, vous devez lire et accepter nos conditions.
Code
Insérez le code montré dans l'image.
Envoyer
Simulateur de crédit
Simulateur d´IMT
Valeur de la propriété*
Montant du prêt*
Votre âge*
Durée du prêt *
Mensualité
0.00
€
Le montant de la mensualité présenté n´inclut pas l´assurance vie et l´assurance habitation.
Index
0.000
%
TAEG
0.000
%
Spread
0.000
%
Durée
0
anos
TAN
0.000
%
Simuler
Les informations générées dans ce simulateur sont destinées à fournir des informations à caractère exclusivement indicatif à l'utilisateur, ne conférant aucune valeur contraignante ni à la collecte de données à des fins commerciales.
Localisation de la propriété*
Sélectionner
Portugal continental
Régions autonomes
Finalité*
Sélectionner
Logement permanent
Logement secondaire ou locatif
Bâtiments rustiques
Autres
Valeur de la propriété*
Valeurs complémentaires*
IMT
0.00
€
Droit de timbre (0,8%)
0.00
€
Valeurs complémentaires
0.00
€
Total à payer
0.00
€
Mais informações
Simuler
Les informations générées dans ce simulateur sont destinées à fournir des informations à caractère exclusivement indicatif à l'utilisateur, ne conférant aucune valeur contraignante ni à la collecte de données à des fins commerciales.
Dados de Intermediação de Crédito - (Intermediário de Crédito nº )
Saiba mais sobre a sua simulação
Nom
Campo obrigatório
E-mail
Campo obrigatório
Insira um e-mail válido
Contact
Campo obrigatório
Commentaires
Isto é apenas uma simulação. Esta simulação de crédito não tem fins lucrativos.
Li e aceito a
Politique de confidentialité
Pour terminer cette opération, vous devez lire et accepter nos conditions.
Code
Insérez le code montré dans l'image.
Enviar
Caractéristiques générales
Général
Pièces
Pièces
Lieu
Étage
Murs
Plafonds
Commentaires
Environnement
Commodités
Domotique
Energies Renouvelables
Voir aussi
Lisboa, Azambuja, Aveiras de Cima
630 000 €
Maison jumelée 4 Chambre(s)
630 000 €
Maison jumelée 4 Chambre(s)
Lisboa, Azambuja, Aveiras de Cima
4
4
1
364,25 m²
A. Bruta
216,85 m²
A. Utile
397,9 m²
A. Terrain
Contactar
Lisboa, Azambuja, Aveiras de Cima
580 000 €
Maison jumelée 4 Chambre(s)
580 000 €
Maison jumelée 4 Chambre(s)
Lisboa, Azambuja, Aveiras de Cima
4
4
1
378,25 m²
A. Bruta
201,85 m²
A. Utile
404,45 m²
A. Terrain
Contactar
Lisboa, Azambuja, Aveiras de Cima
460 000 €
Maison jumelée 3 Chambre(s)
460 000 €
Maison jumelée 3 Chambre(s)
Lisboa, Azambuja, Aveiras de Cima
3
2
1
257,8 m²
A. Bruta
173,6 m²
A. Utile
215,4 m²
A. Terrain
Contactar
Plus de propriétés +
Nous sommes à votre disposition pour vous aider
Je veux être contacté(e)
Date
Time
Nom
Insérer un nom
E-mail
Insérer un email
Entrez une adresse email valide
Contact
Insérez vos coordonnées
Message
Li e aceito a
Politique de confidentialité
Pour terminer cette opération, vous devez lire et accepter nos conditions.
Code
Insérez le code montré dans l'image.
Envoyer
O que é a pesquisa responsável
Esta pesquisa permite obter resultados mais ajustados à sua disponibilidade financeira.